我公司自1992年開始,一直為“國家內燃機發電機組質量監督檢查中心”檢驗合格的柴油發電機組制造廠商。公司擁有先進的檢測設備、精湛的生產工藝、專業的制造設計、完善的質量管理體系、 雄厚的研發實力,服務網絡遍布全國各地,隨時為您提供設計、供應、調試、維修一條龍服務!
24小時銷售熱線:13878198542
24小時服務熱線:13878801642
◎ 上柴發電機SC15G500D2技術參數
柴油機技術參數
額定功率
|
轉速 |
運行模式 |
功率 |
|
|
rpm |
kW |
Ps |
|
|
1500 |
常用功率 |
330 |
449 |
|
備用功率 |
363 |
494 |
|
-. 柴油機性能符合GB/T2820
-. 標定功率根據GB/T1147.1
→常用功率:用于可變載荷應用,全年無使用小時限制。連續運行24小時的平均可許輸出功率不得超過常用額定功率的80%。
→備用功率:在電網電力發生斷電時應用,或在試驗條件下應用,全年使用時間最多不超過200小時。連續運行24小時的平均可許輸出功率不得超過備用額定功率的80%。
不得超負荷運行
|
◎ 基本規格 |
◎ 燃油耗 |
||
|
?柴油機型號 |
SC15G500D2 |
?功率 |
L/h |
|
?柴油機型式 |
直列,四沖程,水冷 |
25% |
21.9 |
|
|
增壓空冷 |
50% |
40.1 |
|
?燃燒方式 |
直噴 |
75% |
59.4 |
|
?氣缸型式 |
濕式缸套 |
100% |
79.8 |
|
?氣缸數 |
6 |
110% |
89.0 |
|
?缸徑 × 行程 |
135(5.32) × 165(6.5) mm(in.) |
|
|
|
?排量 |
14.16(864) L(in3) |
|
|
|
?壓縮比 |
15.55 : 1 |
|
|
|
?發火次序 |
1-5-3-6-2-4 |
◎ 燃油系統 |
|
|
?噴油提前角 |
14.5°BTDC |
?噴油泵 |
伊捷直列P型泵 |
|
?凈重 |
大約1296kg (2857.2 lb) |
?調速器 |
電調 |
|
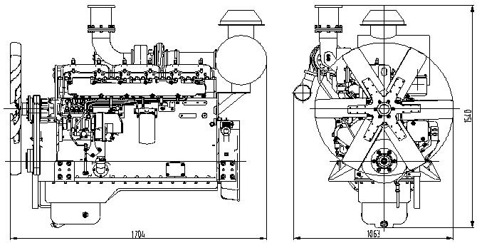
?外形尺寸 |
1704×1063×1540 mm |
?輸油泵 |
機械式 |
|
(L×W×H) |
(67.1×41.9×60.7 in.) |
?噴油嘴 |
多孔型 |
|
?曲軸旋轉方向 |
逆時針(從飛輪端看) |
?開啟壓力 |
240kg/cm2 (3414 psi) |
|
?飛輪殼 |
SAE 1# |
?燃油濾清器 |
旋裝全流式 |
|
?飛輪 |
SAE 14#(齒數125) |
?燃料 |
輕柴油 |
|
|
|
|
|
|
◎ 配氣機構 |
◎ 潤滑系統 |
||
|
?型式 |
頂置氣門 |
?潤滑方式 |
壓力飛濺式 |
|
?氣門數 |
每缸1進1排 |
?機油泵 |
曲軸帶動齒輪方式 |
|
?冷態氣門間隙 |
進氣門 0.325mm(0.0128 in.) |
?機油濾清器 |
旋裝全流式 |
|
|
排氣門 0.375mm(0.0148 in.) |
?機油容量 |
最大 41 L(10.82 gal.) |
|
|
|
|
最小 33 L(8.71 gal.) |
|
◎ 氣門正時 |
?偏置油底殼傾斜角 |
前傾25° |
|
|
|
開啟 關閉 |
|
后傾35° |
|
?進氣門 |
20°BTDC 48°ABDC |
|
左傾/右傾35° |
|
?排氣門 |
48°BBDC 20°ATDC |
?潤滑油 |
參考使用保養說明書 |
|
|
|
|
|
|
◎ 冷卻系統 |
◎ 柴油機數據 |
||
|
?冷卻方式 |
淡水循環冷卻 |
?冷卻液流量 |
450L/min /1500 rpm |
|
?冷卻液容量 |
25.5L (6.73 gal.) |
?冷卻液熱損失 |
33.2kcal/sec /1500 rpm |
|
(僅發動機) |
|
?中冷器熱損失 |
20.7kcal/sec /1500 rpm |
|
?壓力系統 |
Max.0.5 kg/cm2 ( 7.11 psi) |
?進氣流量 |
30.4m3/min /1500 rpm |
|
?水泵 |
離心式,齒輪帶動 |
?排氣流量 |
71.6m3/min /1500 rpm |
|
?水泵流量 |
450L(118.8gal.)/min |
?排氣溫度 |
600 °C /1500 rpm |
|
|
/ 1500 rpm (engine) |
?最大允許阻力 |
|
|
?調溫器 |
蠟式 |
進氣系統 |
3 kPa (新濾芯) |
|
|
開啟溫度. 77°C |
|
6 kPa (臟濾芯,需更換) |
|
|
全開溫度. 90°C |
排氣系統 |
10 kPa (最大) |
|
?風扇 |
吹風式,鐵皮風扇 |
?最高允許海拔 |
2000 m |
|
|
直徑920 mm, 6片 |
?中冷器阻力限值 |
11 kPa |
|
|
功耗10 kW |
|
|
|
|
|
|
|
|
◎ 電器系統 |
◆ 換算表 |
||
|
?發電機 |
28V×55A |
in. = mm × 0.0394 |
lb/ft = N.m × 0.737 |
|
?電壓調節器 |
內嵌式,集成電路式調節器 |
PS = kW × 1.3596 |
U.S. gal = L × 0.264 |
|
?啟動馬達 |
24V×7.5kW |
psi = kg/cm2 × 14.2233 |
kW = 0.2388 kcal/s |
|
?蓄電池電壓 |
24V |
in3 = L × 61.02 |
lb/PS.h = g/kW.h × 0.00162 |
|
?蓄電池容量 |
180 AH |
hp = PS × 0.98635 |
cfm = m3/min × 35.336 |
|
|
|
lb = kg × 2.20462 |
|

| 型號 | TFW2-300-4A | 過載能力 | 過載10%一小時 |
| 額定功率(KW) | 300 | 短時電流 | 150%10S |
| 類型 | 無刷自勵 | 電制 | 三相四線,中性點接地 |
| 絕緣等級 | H級 | 功率因素 | 0.8滯后 |
| 防護等級 | IP22 | 接法 | 單相并聯 |
以上是江蘇星光發電設備有限公司給各位用戶介紹的上柴發電機SC15G500D2技術參數。我公司是上柴公司授權中國柴油發電機組OEM配套廠家。星光公司供應的上柴發電機組具有質量穩定,性能可靠,操作簡單,保養方便的優點,歡迎各位新老客戶前來訂購。更多關于上柴發電機組系列產品詳情歡迎來電咨詢汪先生 13878198542
